Quadrilocale in vendita

Padova, Via Giobatta Valvasori - Madonna Pellegrina
€ 260.000
4 locali 4 locali
115 Mq 115 Mq
2 bagni 2 bagni

Quadrilocale in vendita

Padova, Via Giobatta Valvasori - Madonna Pellegrina

Descrizione annuncio

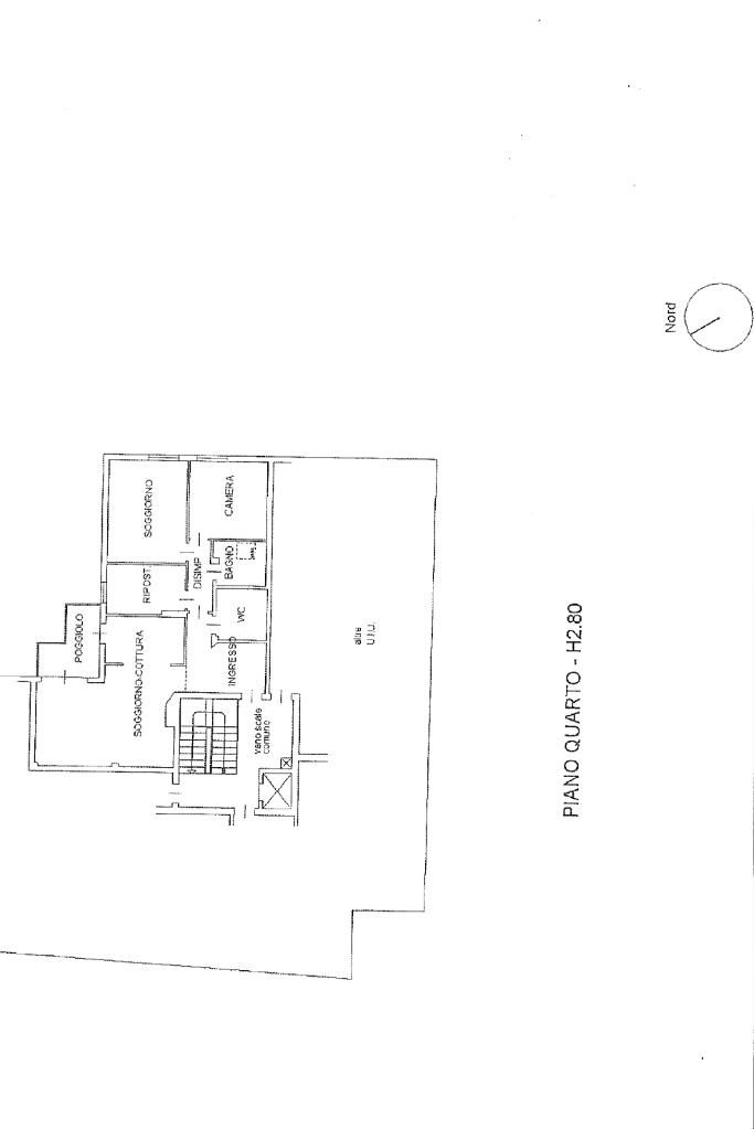
MADONNA PELLEGRINA – ULTIMO PIANO CON ASCENSORE

In tranquillo contesto residenziale, proponiamo in vendita un elegante appartamento completamente ristrutturato, situato al quarto ed ultimo piano servito da ascensore, con riscaldamento centralizzato.

L’ingresso si apre su una ampia e luminosa zona giorno open space, con soggiorno e cucina a vista, perfetta anche come sala da pranzo per momenti conviviali. L’ambiente è valorizzato da una grande porta finestra che conduce al terrazzo, accessibile anche dalla cucina, creando una piacevole continuità tra spazi interni ed esterni.

Un comodo corridoio conduce alla zona notte, composta da tre camere da letto di diverse dimensioni e due bagni, di cui uno finestrato.

L’immobile è stato oggetto di recente ristrutturazione completa, pensata per garantire il massimo comfort: serramenti nuovi, radiatori in ghisa, impianti elettrico e idraulico rifatti, oltre a pavimentazione in legno che dona calore e modernità agli ambienti.

La distribuzione interna è razionale e funzionale, ideale per chi cerca spazi ampi, ben organizzati e pronti da abitare.

Completa la proprietà un garage al piano terra.

Il condominio si trova in una via tranquilla del quartiere Madonna Pellegrina, posizione comoda a tutti i principali servizi.

Mostra tutto

Caratteristiche

Rif.:
61167421
Piano:
4 di 4 con ascensore (ultimo Piano)
Box:
1
Terrazzi:
1
Camere da letto:
3
Arredamento:
Assente
Mostra tutto
Prezzo Prezzo
€ 260.000
Rata mutuo Rata mutuo
€ 1.214 / mese
Spese annue Spese annue
€ 2.200
Proponi il tuo prezzoProponi il tuo prezzo
Immobile valutato con T·Valuta

Classe Energetica

C
C
C
C
C
C
C
C
C
EP globale non rinnovabile:
63.90 kW h/m² anno
EP globale rinnovabile:
0.62 kW h/m² anno
EP invernale del fabbricato:
EP estiva del fabbricato:
Anno di costruzione:
1970
Riscaldamento:
Centralizzato
Tipo impianto:
A radiatori
Tipo alimentazione:
Metano

Ti interessa visionare l'immobile?

Fissa un appuntamento  Fissa un appuntamento

Richiedi informazioni

Clicca su Leggi per aprire l'informativa
* Questi campi sono obbligatori

Calcola il tuo mutuo

Semplice e senza impegno
Anticipo

( % )
Mutuo

( % )

pochi semplici passi

inserisci i tuoi dati
Questionario completato
Grazie per aver richiesto un appuntamento senza impegno con un nostro Consulente del Credito e Assicurativo.

Hai inserito correttamente tutti i dati necessari e a breve riceverai una e-mail con un link da convalidare per inviare i tuoi dati.
Affiliato
Bf Studio Srl
Via D'Acquapendente, 74/A 35122 Padova (PD)

Il nostro staff


  • Aurelio Fregonese Bertin
    Affiliato

  • Samantha De Marchi
    Affiliata
Via D'Acquapendente, 74/A 35122 Padova (PD)
Zona: Madonna Pellegrina-Santa Rita-Sant'Osvaldo
Mostra su mappa
Orari: dal lunedì al venerdì 9:00 - 13:00; 14:30 - 19:30; sabato chiusura 13:00
Affiliato
Bf Studio Srl
Via D'Acquapendente, 74/A 35122 Padova (PD)

2026 Tecnocasa Franchising S.p.A. - P. IVA 08365160152 - Via Monte Bianco 60/A 20089 Rozzano (MI). Ogni agenzia ha un proprio titolare ed è autonoma. Privacy policy | Policy utilizzo | Cookie policy